Casa semindipendente in vendita

Baldissero Torinese, Via Superga
€ 358.000
5 locali 5 locali
220 Mq 220 Mq
3 bagni 3 bagni

Casa semindipendente in vendita

Baldissero Torinese, Via Superga

Descrizione annuncio

Proponiamo in vendita casa semindipendente, libera su tre lati, situata in una zona tranquilla e comoda per Torino.

L’abitazione si sviluppa su più livelli e offre ambienti ampi, luminosi e ben distribuiti.
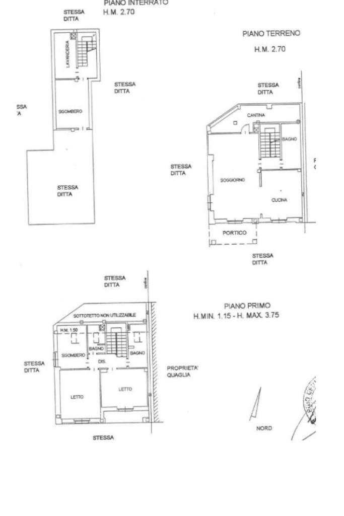
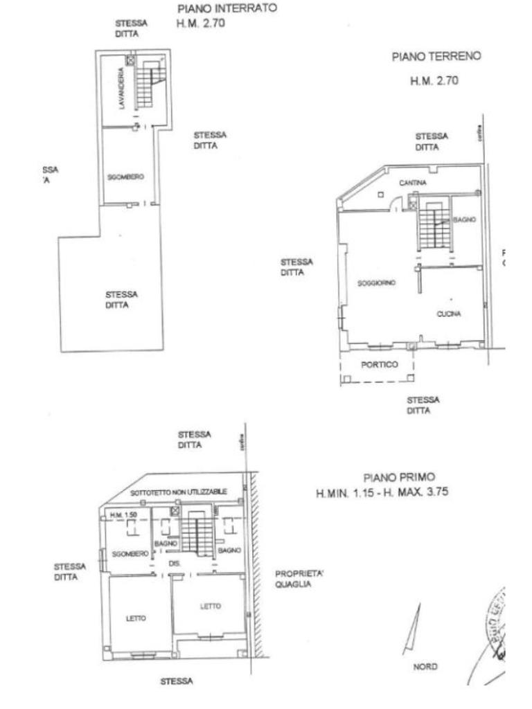
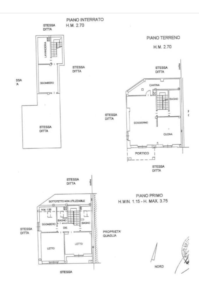
Piano Terra
L’ingresso si apre su un ampio e accogliente soggiorno con camino funzionante. La cucina abitabile è spaziosa con accesso diretto a un ampio terrazzo. Completano il piano un bagno e un comodo locale tecnico.
Piano Primo
La zona notte comprende due camere da letto, entrambe dotate di bagno, e una cabina armadio di generose dimensioni. È inoltre possibile ricavare una terza camera.
Piano Interrato
Al piano seminterrato troviamo un box auto triplo, una cantina e la lavanderia.
L’immobile è dotato di panelli fotovoltaici.

Mostra tutto

Nelle vicinanze

Trasporto pubblico Trasporto pubblico
Zenit
Zenit
240 m
Bellavista
Bellavista
270 m
Farmacia Farmacia
Farmacia
1,4 Km
Supermercati Supermercati
Borello
1,3 Km
Negozi Negozi
La Bottega della Valle
2,5 Km
Panificio Il Vecchio Forno di Valle Ceppi
2,6 Km
Bar Bar
Bar Panoramix
1,7 Km
Bar
2,8 Km
Ristoranti Ristoranti
Osteria del Paluch
640 m
Bel Deuit
2,3 Km
Trattoria Superga
2,3 Km
Ostaria Di'La Tradission
2,5 Km
Ristorante del Castello
2,8 Km
Mostra tutto

Caratteristiche

Rif.:
61102153
Piano:
Su più livelli di 3
Totale piani:
3
Box:
1
Posti auto:
3
Balconi:
1
Mostra tutto
Prezzo Prezzo
€ 358.000
Rata mutuo Rata mutuo
€ 1.687 / mese
Spese annue Spese annue
€ 0
Proponi il tuo prezzoProponi il tuo prezzo

Classe Energetica

C
C
C
C
C
C
C
C
C
EP globale non rinnovabile:
131.89 kW h/m² anno
EP invernale del fabbricato:
EP estiva del fabbricato:
Anno di costruzione:
1900
Riscaldamento:
Autonomo
Tipo impianto:
A radiatori
Tipo alimentazione:
Metano

Ti interessa visionare l'immobile?

Fissa un appuntamento  Fissa un appuntamento

Richiedi informazioni

Clicca su Leggi per aprire l'informativa
* Questi campi sono obbligatori

Calcola il tuo mutuo

Semplice e senza impegno
Anticipo

( % )
Mutuo

( % )

pochi semplici passi

inserisci i tuoi dati
Questionario completato
Grazie per aver richiesto un appuntamento senza impegno con un nostro Consulente del Credito e Assicurativo.

Hai inserito correttamente tutti i dati necessari e a breve riceverai una e-mail con un link da convalidare per inviare i tuoi dati.
Affiliato
Studio Pino Torinese Sas
Via Roma, 109 10025 Pino Torinese (TO)

Il nostro staff


  • Simone Buccellato
    Affiliato

  • Lara Bagnoli
    Collaboratrice

  • Tania Cestari
    Coordinatrice

  • Anisa Mehja
    Collaboratrice
Via Roma, 109 10025 Pino Torinese (TO)
Zona: Pino Torinese-Baldissero Torinese
Mostra su mappa
Orari: dalle 9.00 alle 12.30 e dalle 14.30 alle 19.30, il sabato chiusura alle ore 19.00.
Affiliato
Studio Pino Torinese Sas
Via Roma, 109 10025 Pino Torinese (TO)

2026 Tecnocasa Franchising S.p.A. - P. IVA 08365160152 - Via Monte Bianco 60/A 20089 Rozzano (MI). Ogni agenzia ha un proprio titolare ed è autonoma. Privacy policy | Policy utilizzo | Cookie policy