Bilocale in affitto

Pino Torinese, Via Roma
€ 700 / mese
Prezzo aggiornato
2 locali 2 locali
90 Mq 90 Mq
2 bagni 2 bagni

Bilocale in affitto

Pino Torinese, Via Roma

Descrizione annuncio

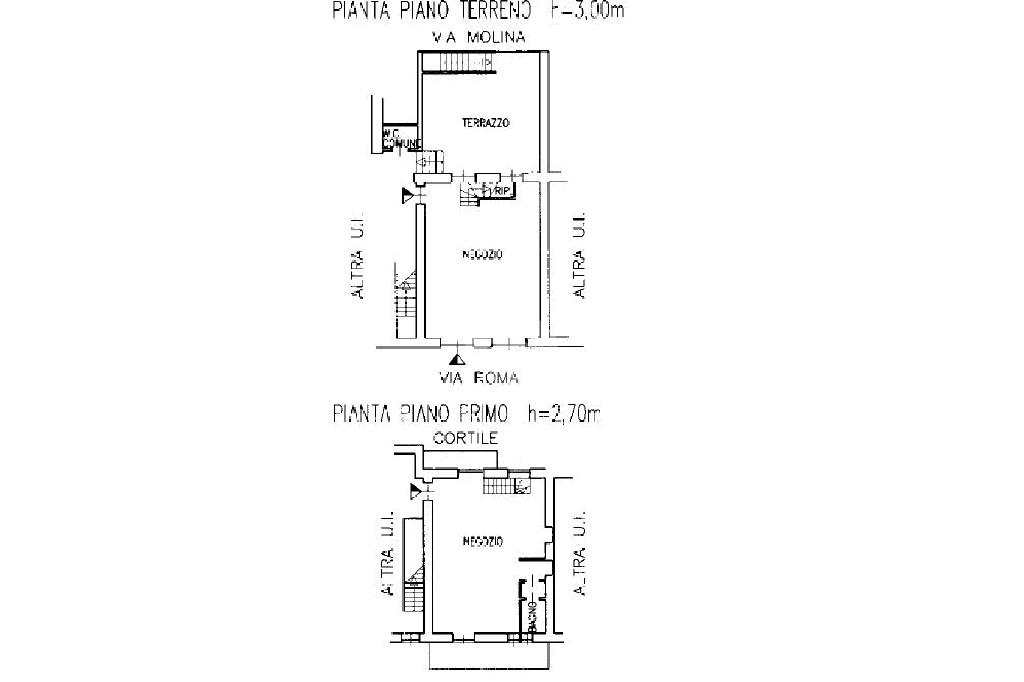
Nel cuore di Pino Torinese, proponiamo in locazione un immobile di 90 mq, distribuito su più livelli. Offre un ambiente accogliente e funzionale. Al suo interno, si trovano due ampi locali che possono essere personalizzati secondo le proprie esigenze. La proprietà dispone di due bagni, garantendo comfort e praticità. Un balcone e un terrazzo offrono spazi esterni. La posizione nel comune di Pino Torinese permette di vivere in un contesto tranquillo, pur essendo a breve distanza dai principali servizi e collegamenti.

Mostra tutto

Nelle vicinanze

Trasporto pubblico Trasporto pubblico
Pino Centro
Pino Centro
70 m
Osservatorio
Osservatorio
270 m
Scuole Scuole
Scuola Media "Nino Costa"
120 m
Scuola Elementare "Domenico Folis"
190 m
Scuola Elementare "Podio"
1,9 Km
Farmacia Farmacia
Parafarmacia Santa Rita
30 m
Farmacia
80 m
Farmacia Comunale
1,8 Km
Ospedali Ospedali
Residenza Eremo dei Camaldolesi
2,8 Km
Negozi Negozi
Premiere
20 m
Alimentari El Buteghin
30 m
Carrefour Express
50 m
Melange
60 m
Alimentari Belvedere
70 m
Bar Bar
Bar Panoramix
2,1 Km
Ristoranti Ristoranti
Gastronomia Ai Fornelli
40 m
Ristorante Pigna d'Oro
180 m
Pizzeria Pinocchio
450 m
Pizzeria La Panoramica
580 m
La Vignassa
1,3 Km
Mostra tutto

Caratteristiche

Rif.:
60942395
Piano:
Su più livelli di 2
Totale piani:
2
Balconi:
1
Terrazzi:
1
Arredamento:
Assente
Mostra tutto
Prezzo Prezzo
€ 700 / mese
Spese annue Spese annue
€ 480

Classe Energetica

E
E
E
E
E
E
E
E
E
EP globale non rinnovabile:
98.53 kW h/m² anno
EP invernale del fabbricato:
EP estiva del fabbricato:
Anno di costruzione:
1900
Riscaldamento:
Assente

Prezzo ridotto di €1 (13%%)

Ti interessa visionare l'immobile?

Fissa un appuntamento  Fissa un appuntamento

Richiedi informazioni

Clicca su Leggi per aprire l'informativa
* Questi campi sono obbligatori
Affiliato
Studio Pino Torinese Sas
Via Roma, 109 10025 Pino Torinese (TO)

Il nostro staff


  • Simone Buccellato
    Affiliato

  • Lara Bagnoli
    Collaboratrice

  • Tania Cestari
    Coordinatrice

  • Anisa Mehja
    Collaboratrice
Via Roma, 109 10025 Pino Torinese (TO)
Zona: Pino Torinese-Baldissero Torinese
Mostra su mappa
Orari: dalle 9.00 alle 12.30 e dalle 14.30 alle 19.30, il sabato chiusura alle ore 19.00.
Affiliato
Studio Pino Torinese Sas
Via Roma, 109 10025 Pino Torinese (TO)

2026 Tecnocasa Franchising S.p.A. - P. IVA 08365160152 - Via Monte Bianco 60/A 20089 Rozzano (MI). Ogni agenzia ha un proprio titolare ed è autonoma. Privacy policy | Policy utilizzo | Cookie policy