Casa semindipendente in vendita

Pino Torinese, Via Tepice
€ 119.000
2 locali 2 locali
77 Mq 77 Mq
1 bagno 1 bagno

Casa semindipendente in vendita

Pino Torinese, Via Tepice

Descrizione annuncio

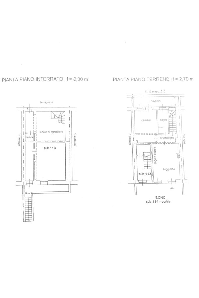
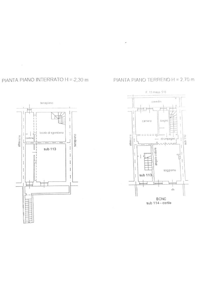
In contesto tranquillo immerso nel verde, a soli cinque minuti da Chieri e dal centro di Pino Torinese, a quindici minuti da Torino,appartamento al piano terra di una casa bifamiliare.


L'immobile si compone di ingresso su cucina abitabile, disimpegno, camera da letto matrimoniale e bagno finestrato.

Sul retro si trova cavedio esterno.

Al piano interrato è presente una graziosa tavernetta di 22 mq con camino, perfetta per momenti di convivialità e ripostiglio.


L’appartamento dispone inoltre di un posto auto privato e affaccia su un cortile comune con l'unità del piano superiore, fruibile e adatto a pranzi o cene all’aperto.

L’immobile è stato oggetto di una parziale ristrutturazione nel 2020.

Mostra tutto

Nelle vicinanze

Trasporto pubblico Trasporto pubblico
Tetti Menzio
Tetti Menzio
1,8 Km
Traforo
Traforo
1,8 Km
Scuole Scuole
Scuola Media "Nino Costa"
2,5 Km
Scuola Elementare "Domenico Folis"
2,6 Km
Farmacia Farmacia
Farmacia Comunale
2,1 Km
Farmacia
2,4 Km
Parafarmacia Santa Rita
2,4 Km
Supermercati Supermercati
Borello
2,4 Km
Negozi Negozi
Panificio Il Vecchio Forno di Valle Ceppi
10 m
La Bottega della Valle
80 m
Sweet Bio Delicious
2,1 Km
Negozi
2,3 Km
Carrefour Express
2,4 Km
Bar Bar
Bar Panoramix
1,9 Km
Ristoranti Ristoranti
Ostaria Di'La Tradission
90 m
Ristorante Pizzeria del Pino
2,1 Km
Ristorante Pigna d'Oro
2,3 Km
Gastronomia Ai Fornelli
2,4 Km
Pizzeria Pinocchio
2,8 Km
Mostra tutto

Caratteristiche

Rif.:
61127002
Piano:
Terra di 2
Totale piani:
2
Posti auto:
1
Camere da letto:
1
Arredamento:
Assente
Mostra tutto
Prezzo Prezzo
€ 119.000
Rata mutuo Rata mutuo
€ 549 / mese
Spese annue Spese annue
€ 0
Proponi il tuo prezzoProponi il tuo prezzo

Classe Energetica

G
G
G
G
G
G
G
G
G
EP globale non rinnovabile:
198.31 kW h/m² anno
EP globale rinnovabile:
21.67 kW h/m² anno
EP invernale del fabbricato:
EP estiva del fabbricato:
Anno di costruzione:
1900
Riscaldamento:
Autonomo
Tipo impianto:
A radiatori
Tipo alimentazione:
Metano

Ti interessa visionare l'immobile?

Fissa un appuntamento  Fissa un appuntamento

Richiedi informazioni

* Questi campi sono obbligatori

Calcola il tuo mutuo

Semplice e senza impegno
Anticipo

( % )
Mutuo

( % )

pochi semplici passi

inserisci i tuoi dati
Questionario completato
Grazie per aver richiesto un appuntamento senza impegno con un nostro Consulente del Credito e Assicurativo.

Hai inserito correttamente tutti i dati necessari e a breve riceverai una e-mail con un link da convalidare per inviare i tuoi dati.
Affiliato
Studio Pino Torinese Sas
Via Roma, 109 10025 Pino Torinese (TO)

Il nostro staff


  • Simone Buccellato
    Affiliato

  • Lara Bagnoli
    Collaboratrice

  • Tania Cestari
    Coordinatrice

  • Anisa Mehja
    Collaboratrice
Via Roma, 109 10025 Pino Torinese (TO)
Zona: Pino Torinese-Baldissero Torinese
Mostra su mappa
Orari: dalle 9.00 alle 12.30 e dalle 14.30 alle 19.30, il sabato chiusura alle ore 19.00.
Affiliato
Studio Pino Torinese Sas
Via Roma, 109 10025 Pino Torinese (TO)

2025 Tecnocasa Franchising S.p.A. - P. IVA 08365160152 - Via Monte Bianco 60/A 20089 Rozzano (MI). Ogni agenzia ha un proprio titolare ed è autonoma. Privacy policy | Policy utilizzo | Cookie policy